Hermosa casa Galpón, cuenta con 85 mts2,
Su arquitectura la hace ideal para la zona, mezclándose entre los galones de la décima región.
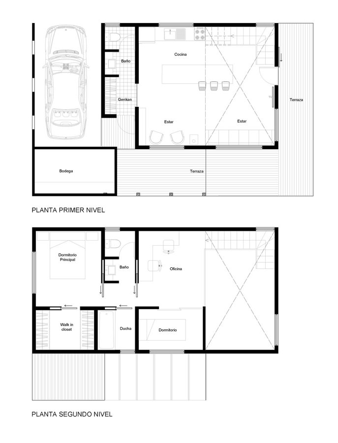
su distribución cuenta con:
Primer Nivel:
Estacionamiento, Bodega, Chiflonera, Baño Visita, cocina y living comedor.
Segundo Nivel:
Oficina/Estar, dormitorio 01, Baño Principal, Dormitorio Principal, Walking Closet.
Fachada de la casa y sus revestimientos en zinc prepintado negro, garantiza el hermetismo de la construcción, y de la mano estructura la idea de vivir en un gran galpón, tan propio de la región,
La mezcla perfecta del negro, es la madera de manera noble contrasta al color del revestimiento de la casa.
interior amplio, moderno y utilizando al máximo sus espacios.
grandes entradas para recibir la siempre bienvenida iluminación natural
Distribucionpropuesta tentativa, abierta modificaciones.