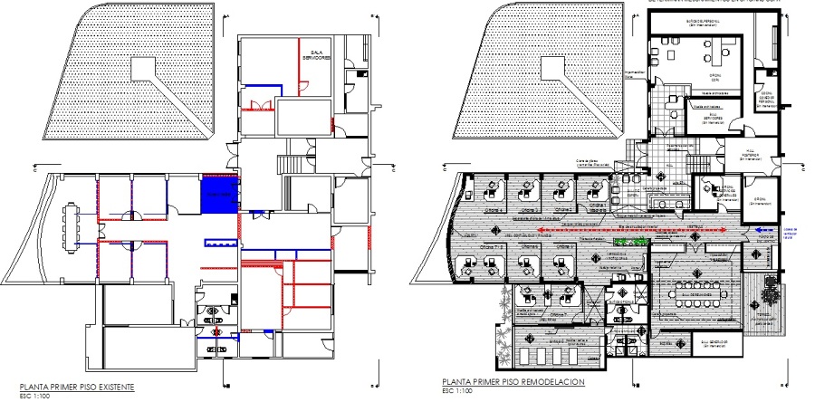
Proyecto de arquitectura (Etapa 1 – Remodelación interior) de la oficina corporativa de Empresa portuaria de Antofagasta (EPA). Alicanto arquitectos. Año 2017.
Inspiración y proyectos